Grundrisse & Preise
Wohnung | Wohn- und Nutzfläche (ca.-Werte) |
Kaufpreis | Grundriss |
---|---|---|---|
Haus 1 | |||
WE 1 - wird Musterwohnung | 104 m² | 629.000 € | Grundriss |
WE 2 | 76 m² | verkauft | Grundriss |
WE 3 | 104 m² | 629.000 € | Grundriss |
WE 4 | 104 m² | verkauft | Grundriss |
WE 5 | 76 m² | verkauft | Grundriss |
WE 6 | 104 m² | 659.000 € | Grundriss |
WE 7 | 124 m² | verkauft | Grundriss |
WE 8 | 117 m² | verkauft | Grundriss |
Haus 3 | |||
WE 9 | 104 m² | verkauft | Grundriss |
WE 10 | 76 m² | 469.000 € | Grundriss |
WE 11 | 104 m² | 629.000 € | Grundriss |
WE 12 | 104 m² | 658.000 € | Grundriss |
WE 13 | 76 m² | verkauft | Grundriss |
WE 14 | 104 m² | 659.000 € | Grundriss |
WE 15 | 124 m² | 839.000 € | Grundriss |
WE 16 | 117 m² | 799.000 € | Grundriss |
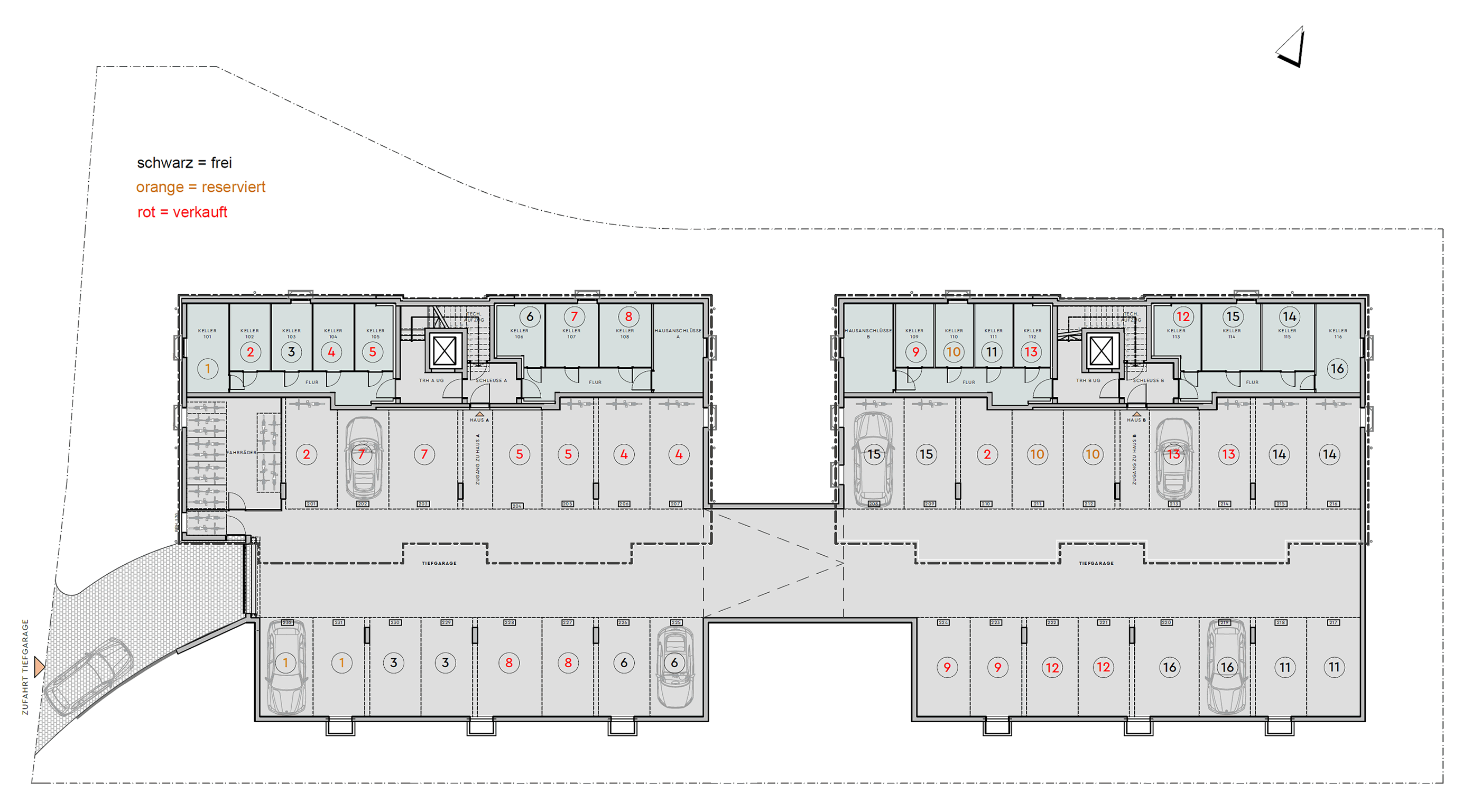
TG-Stellplatz | 25.000,- € | Grundriss |


















Gesamtfläche gemäß Wohnflächenverordnung (WoflV) inkl. Nutzfläche; alle Werte ca.-Angaben. Der Preis für die Wohneinheit ist ein Festpreis. Er beinhaltet die schlüsselfertige Wohnung einschließlich Grundstück, erstmalige Erschließungs- und Anschlusskosten für Wasser, Kanal, Wärme und Strom.
Je Wohnung ist der Kauf von zwei Stellplätzen in der Tiefgarage erforderlich.
Grundrisse:
Kontakt
Centra Immobilien GmbH
An der Norr 12
65307 Bad Schwalbach
Ralf Jordan
06124 70 02 20
jordancentrabau.de
www.centrabau.de